Rif: ROB-265
ROBBIATE
LECCO € 240.000- Appartamento
- Vendita
- 110 Mq
- 3 Vani
- 2 Camere
- 1 Bagni
- Giardino 220 mq
- Garage 37 mq
- EPI: 96,51 kwh/m2 anno
- Classe energetica: C
- Descrizione
- Dettaglio immobile
- Consistenze
- Mappa
- Planimetrie
- Video
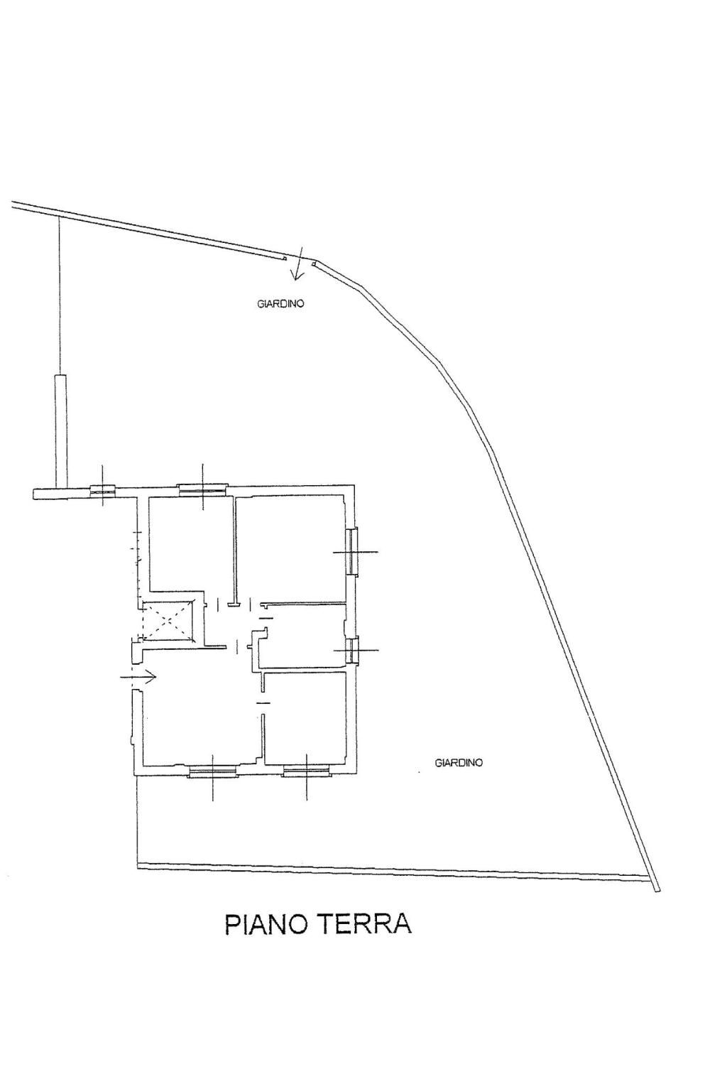
In zona incantevole e comoda con il centro e i principali servizi, proponiamo luminoso trilocale con giardino privato su tre lati, perfetto per chi desidera vivere in un contesto riservato senza rinunciare alla comodità.
L'appartamento si compone di:
- ampio soggiorno con accesso diretto all'area esterna
- cucina abitabile
- due camere da letto, spaziose e ben illuminate
- bagno finestrato con finiture moderne.
All'esterno, il giardino privato, in parte pavimentato, offre uno spazio ideale per stare all'aperto nei momenti di relax.
L'immobile, di recente costruzione, è inserito in una palazzina dotata di ascensore che collega comodamente all'interrato, dove si trovano una cantina ampia compresa nel prezzo e un box doppio in lunghezza in vendita ad Eu. 25.000,00.
Per maggiori informazioni: Tel. 039 511409 - www.ametiacase.it per tante altre soluzioni con un click. Il presente annuncio ha valore indicativo e non costituisce elemento contrattuale.
L'appartamento si compone di:
- ampio soggiorno con accesso diretto all'area esterna
- cucina abitabile
- due camere da letto, spaziose e ben illuminate
- bagno finestrato con finiture moderne.
All'esterno, il giardino privato, in parte pavimentato, offre uno spazio ideale per stare all'aperto nei momenti di relax.
L'immobile, di recente costruzione, è inserito in una palazzina dotata di ascensore che collega comodamente all'interrato, dove si trovano una cantina ampia compresa nel prezzo e un box doppio in lunghezza in vendita ad Eu. 25.000,00.
Per maggiori informazioni: Tel. 039 511409 - www.ametiacase.it per tante altre soluzioni con un click. Il presente annuncio ha valore indicativo e non costituisce elemento contrattuale.
Contratto Vendita
Rif ROB-265
Prezzo € 240.000
Provincia Lecco
Comune Robbiate
Indirizzo Via 25 Aprile">
Vani 3
Camere 2
Bagni 1
Classe energetica
C (DL 90/2013)
EPgl,nren 96,51 kwh/m2 anno
Riscaldamento autonomo
Condizioni ottime condizioni
Spese condominiali € 90
Anno di costruzione 2006
Ascensore si
Cucina abitabile
| Descrizione | Superficie | Sup. comm. |
|---|---|---|
| Principali | ||
| Immobile - piano terra | 85 Mq | 85 Mqc |
| Giardino/Resede | 220 Mq | 22 Mqc |
| Cantina - piano interrato | 12 Mq | 3 Mqc |
| Accessorie | ||
| Box/Garage - piano interrato | 37 Mq | 18 Mqc |
| Totale | 128 Mqc | |
Zoom della mappa
Apri con:
Apple Maps
Google Maps
Waze
Apri la mappa







