Rif: BOX-VI
VERDERIO
LECCO € 39.000- Garage / Posto auto
- Vendita
- 57 Mq
- Garage
- EPI: Non disp.
- Classe energetica: Non indicata
- Descrizione
- Dettaglio immobile
- Mappa
- Planimetrie
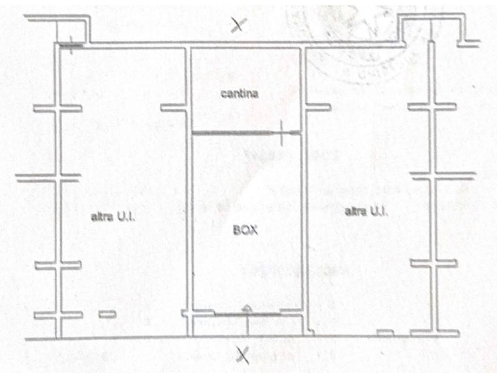
Proponiamo in vendita box auto piastrellato, con anta basculante elettrica e antifurto.
Misure indicative:
- 12m lunghezza
- 5m larghezza
- 2,45m altezza
- 2m altezza ingresso
- 3,30m larghezza ingresso
Per maggiori informazioni: Tel. – visita il nostro sito per tante altre soluzioni con un click.
Il presente annuncio ha valore indicativo e non costituisce elemento contrattuale.
Misure indicative:
- 12m lunghezza
- 5m larghezza
- 2,45m altezza
- 2m altezza ingresso
- 3,30m larghezza ingresso
Per maggiori informazioni: Tel. – visita il nostro sito per tante altre soluzioni con un click.
Il presente annuncio ha valore indicativo e non costituisce elemento contrattuale.
Contratto Vendita
Rif BOX-VI
Prezzo € 39.000
Provincia Lecco
Comune Verderio
Indirizzo Via Aldo Moro">
Superficie
57 mq
Classe energetica
Non indicata
Garage
singolo si
Zoom della mappa
Apri con:
Apple Maps
Google Maps
Waze
Apri la mappa







